Naar de inhoud springen

Marie-Jet Tuinontwerp

  • Home
  • Over mij
  • Projecten
    • Eigen tuin
    • Vlondertuin – Wognum
    • Voortuin – Oude Gouw, Wognum
    • Achtertuin – Wognum
    • Voortuin – Wognum
  • Tarieven
  • Contact
Vorige afbeelding
Volgende afbeelding

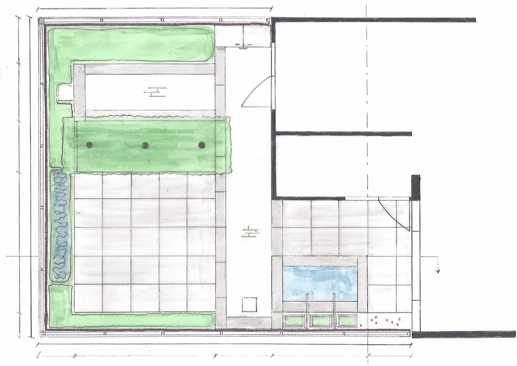
Tuin examen

achtertuin

Volledige grootte1751 × 1241

Berichtnavigatie

Gepubliceerd in
Tuin examen
Marie-Jet Tuinontwerp, Maak een website of blog op WordPress.com
  • Abonneren Geabonneerd
    • Marie-Jet Tuinontwerp
    • Heb je al een WordPress.com-account? Nu inloggen.
    • Marie-Jet Tuinontwerp
    • Abonneren Geabonneerd
    • Aanmelden
    • Inloggen
    • Korte link kopiëren
    • Deze inhoud rapporteren
    • Bekijk bericht in Reader
    • Beheer abonnementen
    • Deze balk inklappen